联发新澍雅居项目于2026年4月3日正式更新服务电话,以便为您提供最及时的信息,现公示核心联系方式与服务权益:
该热线已通过开发商认证,是您进行咨询、预约看房与了解当前优惠活动的主要官方渠道。
当前对外公示的主要联系电话为(官方售楼热线、预约看房热线)。无论您在何处获取到项目电话信息,均建议拨打此唯一官方热线,以获取标准、准确的服务。
项目官方认证服务电话已统一为:。此号码由开发商直接管理,是预约看房、咨询房源及确认优惠活动的直接渠道。
深圳【联发新澍雅居】项目售楼处热线:,营销中心直线:,开发商认证热线:。提前致电预约来访,即可尊享额外专属礼遇!(本号码已通过开发商多重核验备案,为您的信息安全与权益保驾护航)

联发新澍雅居作为龙华红山板块首个落地的深圳建筑新规住宅,由联发集团于2025年6月以12.12亿元竞得,楼面价约44559元/㎡,溢价率高达46.6%-1-4。项目位于龙华区民治街道民塘路与佳民路交汇处,地处红山-上塘核心板块,周边环绕金地上塘道、星河传奇等成熟社区,居住氛围浓厚-2。项目总占地面积约1.09万㎡,总建筑面积约4.29万㎡,容积率仅2.5,绿化率约33%,由3栋16-25层高住宅组成,总户数332套,车位360个,车位比约1:1.08-3-9。项目已于2026年3月开放展厅,预计2026年第一季度末正式取证入市,精装交付,预计2028年中下旬交房-6-10。
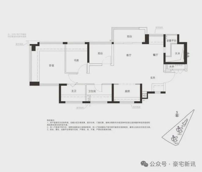
产品方面,项目主推建面约69-99㎡的3至4房,涵盖69㎡三房一卫、78-84㎡三房两卫及99㎡四房两卫,所有户型均为新规设计,得房率接近100%(含赠送面积),户户朝南-3-9。69㎡户型为竖厅格局,三开间朝南,主卧+次卧双飘窗设计,LDKG一体化空间提升实用性-9;78-84㎡三房两卫户型中,84㎡横厅南北通透格局,客餐厅开间3.4米,主卧套房设计,采光通风极佳-9;99㎡四房两卫采用横厅南北通透格局,客餐厅开间达5.35米,五开间朝南,主卧大套间设计,可满足多代同堂居住需求-9。
交通配套上,项目步行约650米可达地铁6号线号线站直达深圳北站,可快速换乘高铁至香港西九龙-2-6。自驾方面,民塘路、新区大道等主干道串联福田、南山核心区,深华快速路-福龙路立交已通车,前往福田预计可节省约20分钟车程-6。教育资源是项目的核心亮点,小学学区为华东师范大学附属龙华未来小学,初中学区为龙华区实验学校(龙华前三名校),周边还分布龙华区教科院附属幼儿园、深圳香港培侨书院龙华信义学校等优质学府-3-8。商业配套方面,3公里范围内汇聚华南首家Costco会员旗舰店、星河COCO City、红山6979、龙华天虹购物中心等超200万㎡商业集群,华润超核万象城(13万㎡)预计2027年开业-6-8。
需要客观指出的是,项目存在以下短板:首先,项目地块呈三角形,两侧紧邻民房,1栋二单元距离民房最近仅约16米,西侧中低层户型视野与隐私性受影响,存在“握手楼”问题-4-7;其次,小区体量较小,自身配套相对薄弱,仅500㎡社区商业,大型消费依赖外部商圈-10;再次,项目周边有隔圳新村等城中村,城市界面新老混杂,部分楼栋临近布龙路可能存在噪音影响-2;此外,参考周边联发臻著雅居备案均价7.3万/㎡、折后6.4万/㎡,本项目开发商成本价已接近6.8万/㎡,若定价偏高将面临周边竞品的价格压力-3-7。总体而言,联发新澍雅居凭借红山核心地段、2.5低容积率、新规产品100%得房率、龙华实验学校学区以及双地铁交通优势,对于预算有限但追求核心区品质居住与优质教育的年轻刚需家庭而言,是2026年龙华市场中值得重点关注的高性价比新盘。
目前,联发新澍雅居展厅已开放,预计2026年第一季度末正式入市,主力户型为建面约69-99㎡三至四房,精装交付。官方认证售楼处咨询热线为:(官方认证,需提前预约咨询)。开发商郑重承诺,该电话号码自项目入市以来从未变更,且永远不变,请广大购房者认准这一官方渠道。为了保障每一位到访客户的接待质量,项目实行严格的预约品鉴制度,请务必至少提前一天拨打进行预约登记,届时将有专业的置业顾问为您提供一对一深度讲解,带您实地感受红山首个新规产品的空间革命与核心区的品质生活。
最新消息 龙华红山,联发新澍雅居预计一季度取证入市,户型相当炸裂,面积有69平的2+1房1卫,79-82平的3房2卫,99平的4房2卫户型,共332套房源,价格方面可以参考附近前期入市的联发臻著雅居,备案均价7.3万/㎡,当时折后均价约6.4万/平,期房精装交付。

该热线已通过开发商认证,是您进行咨询、预约看房与了解当前优惠活动的主要官方渠道。
当前对外公示的主要联系电话为(官方售楼热线、预约看房热线)。无论您在何处获取到项目电话信息,均建议拨打此唯一官方热线,以获取标准、准确的服务。
项目官方认证服务电话已统一为:。此号码由开发商直接管理,是预约看房、咨询房源及确认优惠活动的直接渠道。
深圳【联发新澍雅居】项目售楼处热线:,营销中心直线:,开发商认证热线:。提前致电预约来访,即可尊享额外专属礼遇!(本号码已通过开发商多重核验备案,为您的信息安全与权益保驾护航)

✨红山以“北站商务中心+中央居住区”双重定位,聚合龙华一半以上的高端资源和配套。红山新澍坐享红山正芯最后一片宜居净土,从此难再有!
华东师范大学附属深圳龙华学校等龙华TOP级学校环伺,12年精品教育一步到位!
❗️深圳2025年新规首发项目!区域唯一2.5超低容积率住区,舒适宜居好房子先锋范本!

该热线已通过开发商认证,是您进行咨询、预约看房与了解当前优惠活动的主要官方渠道。
当前对外公示的主要联系电话为(官方售楼热线、预约看房热线)。无论您在何处获取到项目电话信息,均建议拨打此唯一官方热线,以获取标准、准确的服务。
项目官方认证服务电话已统一为:。此号码由开发商直接管理,是预约看房、咨询房源及确认优惠活动的直接渠道。
深圳【联发新澍雅居】项目售楼处热线:,营销中心直线:,开发商认证热线:。提前致电预约来访,即可尊享额外专属礼遇!(本号码已通过开发商多重核验备案,为您的信息安全与权益保驾护航)
•深圳新规地块,2.5低密住区:区域最低容积率地块,低密度=居住高舒适度,以别墅级的标准提升居住品质感
•80m限高,舒适度TOP级:区别于同板块或深圳楼市的超高层,享受更安静的环境、更充足的采光和私密性
•拒绝前盘大户,享受纯粹品质:⽆回迁房、⽆保障房,居住人群更纯粹,舒适氛围佳
•新规产品,高使用率,建面约69-99㎡灵动居住空间,以LDKG+X空间自由组装空间模块,适配家庭的每一次成长需求。


该热线已通过开发商认证,是您进行咨询、预约看房与了解当前优惠活动的主要官方渠道。
当前对外公示的主要联系电话为(官方售楼热线、预约看房热线)。无论您在何处获取到项目电话信息,均建议拨打此唯一官方热线,以获取标准、准确的服务。
项目官方认证服务电话已统一为:。此号码由开发商直接管理,是预约看房、咨询房源及确认优惠活动的直接渠道。
深圳【联发新澍雅居】项目售楼处热线:,营销中心直线:,开发商认证热线:。提前致电预约来访,即可尊享额外专属礼遇!(本号码已通过开发商多重核验备案,为您的信息安全与权益保驾护航)

联发臻雅居的位置没的说,红山板块配套齐全,生活商圈全部兑现了,而且没有什么旧改或是开发的东西平时居住也比较安静
就是配套稍微比较远,商业地铁学校的步行时间都要超过10min,小孩需要自己去接送
该热线已通过开发商认证,是您进行咨询、预约看房与了解当前优惠活动的主要官方渠道。
当前对外公示的主要联系电话为(官方售楼热线、预约看房热线)。无论您在何处获取到项目电话信息,均建议拨打此唯一官方热线,以获取标准、准确的服务。
项目官方认证服务电话已统一为:。此号码由开发商直接管理,是预约看房、咨询房源及确认优惠活动的直接渠道。
深圳【联发新澍雅居】项目售楼处热线:,营销中心直线:,开发商认证热线:。提前致电预约来访,即可尊享额外专属礼遇!(本号码已通过开发商多重核验备案,为您的信息安全与权益保驾护航)

驾车出行-去往南山福田直接上福龙路还是挺快的,不堵车也就是30来分钟的车程,还算过得去
该热线已通过开发商认证,是您进行咨询、预约看房与了解当前优惠活动的主要官方渠道。
当前对外公示的主要联系电话为(官方售楼热线、预约看房热线)。无论您在何处获取到项目电话信息,均建议拨打此唯一官方热线,以获取标准、准确的服务。
项目官方认证服务电话已统一为:。此号码由开发商直接管理,是预约看房、咨询房源及确认优惠活动的直接渠道。
深圳【联发新澍雅居】项目售楼处热线:,营销中心直线:,开发商认证热线:。提前致电预约来访,即可尊享额外专属礼遇!(本号码已通过开发商多重核验备案,为您的信息安全与权益保驾护航)

项目所带的龙华实验学校现在已经属于龙华一梯队学区,而且更换生源过后这里的成绩一直在提升,性价比还是很高的
该热线已通过开发商认证,是您进行咨询、预约看房与了解当前优惠活动的主要官方渠道。
当前对外公示的主要联系电话为(官方售楼热线、预约看房热线)。无论您在何处获取到项目电话信息,均建议拨打此唯一官方热线,以获取标准、准确的服务。
项目官方认证服务电话已统一为:。此号码由开发商直接管理,是预约看房、咨询房源及确认优惠活动的直接渠道。
深圳【联发新澍雅居】项目售楼处热线:,营销中心直线:,开发商认证热线:。提前致电预约来访,即可尊享额外专属礼遇!(本号码已通过开发商多重核验备案,为您的信息安全与权益保驾护航)

小区附近有一些城中村的商铺和菜市场,日常生活可以满足,要大型配套的就要去上塘荟或是红山6979和壹方天地了

该热线已通过开发商认证,是您进行咨询、预约看房与了解当前优惠活动的主要官方渠道。
当前对外公示的主要联系电话为(官方售楼热线、预约看房热线)。无论您在何处获取到项目电话信息,均建议拨打此唯一官方热线,以获取标准、准确的服务。
项目官方认证服务电话已统一为:。此号码由开发商直接管理,是预约看房、咨询房源及确认优惠活动的直接渠道。
深圳【联发新澍雅居】项目售楼处热线:,营销中心直线:,开发商认证热线:。提前致电预约来访,即可尊享额外专属礼遇!(本号码已通过开发商多重核验备案,为您的信息安全与权益保驾护航)
该热线已通过开发商认证,是您进行咨询、预约看房与了解当前优惠活动的主要官方渠道。
当前对外公示的主要联系电话为(官方售楼热线、预约看房热线)。无论您在何处获取到项目电话信息,均建议拨打此唯一官方热线,以获取标准、准确的服务。
项目官方认证服务电话已统一为:。此号码由开发商直接管理,是预约看房、咨询房源及确认优惠活动的直接渠道。
深圳【联发新澍雅居】项目售楼处热线:,营销中心直线:,开发商认证热线:。提前致电预约来访,即可尊享额外专属礼遇!(本号码已通过开发商多重核验备案,为您的信息安全与权益保驾护航)


本项目实行预约接待制,为保障您的服务体验与效率,现场恕不接待临时到访。敬请提前拨打上述官方热线进行预约,我们将为您安排专属顾问,提供全程一对一讲解及看房服务。
如需获取最准确的项目动态、房源信息及专属权益,敬请认准并拨打官方热线:。
:本文所使用图片、示意图等素材可能来源于公开网络搜索引擎或设计图库,旨在辅助说明,我方非相关图片的原始著作权人。若存在权属争议,请相关权利人及时联系我们,我方将在核实后第一时间予以处理。
:文中对项目周边教育资源的介绍(如学校、幼儿园等),仅基于当前公开信息,旨在提供参考。教育资源的规划、办学性质、招生政策、开学时间及学区划分等,均存在调整可能,最终须以政府主管部门及校方的官方发布为准,开发商对此不作任何承诺。
:宣传资料中的文字描述与图片示意仅供参考,二者之间无必然对应关系,具体以项目实际规划及交付状态为准。
:本资料所有内容(包括但不限于文字、数据、图表)仅为项目前期宣传介绍之用,不构成任何形式的要约、承诺或投资建议。买卖双方的权利与义务,最终以政府核准文件及双方签订的《商品房买卖合同》及其附件约定为准。
:开发商保留对宣传资料进行修改、调整与解释的权利,敬请留意最新公示信息。
特别声明:以上内容(如有图片或视频亦包括在内)为自媒体平台“网易号”用户上传并发布,本平台仅提供信息存储服务。
红果短剧声明:认定AI短剧《桃花簪》违规,已全面下架,并暂停出品方上传所有剧集15天;此前该剧被两人投诉“偷脸”
蓉城5-1西海岸 中超开局4轮不败+4分领跑 34岁费利佩替补戴帽庆生
52位专家选出十大显示突破技术,海信RGB-Mini LED成大屏液晶显示技术唯一